Logo for Postpack DIY, featuring two large P's with a house outline, and the text 'Postpack DIY Powered by Precision Post Frame'.
Stack of rectangular wooden planks secured with black bands on outdoor dirt ground.
Stack of neatly arranged wooden planks secured with green straps, placed on an asphalt surface.

Everything you need to build your dream Post Frame - Delivered to your Jobsite

Kits designed for DIY builders or contractors, complete with posts, trusses, lumber, siding, and hardware

Various stacked construction materials including wood and metal beams, some covered with a white sheet, on an open dirt area with trees in the background.
A flatbed truck carrying large wooden roof trusses and a bundle of lumber in a forested area on a clear day.

What’s Included in a PostPack?

Two bags of silver screws, two gray metal brackets, and two metal rails placed on a concrete and dirt surface.

Posts (Glulam, laminated, pressure treated)
Post sized for your project from 3 ply to 4 ply options to meet your requirements. Our suppliers provide the best in post frame posts.

2x4 & 2x6 Lumber Packages
High-quality dimensional lumber bundled and ready for framing walls, roofs, and structural components.

Fasteners, Hardware & Trim
All the essential screws, bolts, brackets, and trim pieces — packaged together for easy installation and a complete finish.

Wooden roof trusses assembled on a gravel ground with a wooded background.
Stack of black corrugated metal sheets secured with black straps on a white protective covering, with two wooden sticks on top, placed on dirt ground.
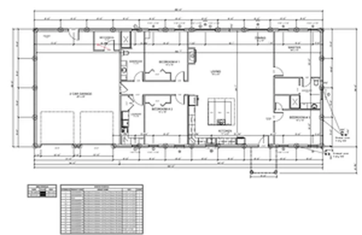
Floor plan of a house including rooms such as a 2-car garage, laundry, bathroom, bedrooms, living room, kitchen, dining area, and master bedroom, with measurements and architectural details.

How It Works (simple 3-4 steps)

Ready to Build? Get your PostPack Today

Design Your Kit

Engineered Trusses
Precision-designed and engineered for strength, durability, and long spans — built to handle heavy snow and wind loads.

Metal Siding & Roofing Panels
Steel panels to the gauge you want for lasting protection and a clean, modern look with multiple color options available.

Detailed Plans
Clear construction drawings to guide your build from start to finish. Pick from one of our stock models or custom drawings.

  1. Choose Your Package – Barn, Shop, Garage, or Custom.

  2. We Engineer & Package – Professionally designed and bundled for your site.

  3. Delivered to Your Location – Materials arrive neatly packaged.

  4. You Build (or Hire Local Help) – Everything you need, ready to assemble.

Not sure if DIY is your style? Don’t worry our team is here to support you every step of the way to make the process easy for you. Don’t want to DIY? Our team can build it for you with our TurnKey Builds.